Вы можете записаться на просмотр интересующей вас площади
Мы получили Ваше обращение и свяжемся с Вами в ближайшее время
При отправке обращения произошла ошибка. Попробуйте перезагрузить страницу и отправить обращение снова.
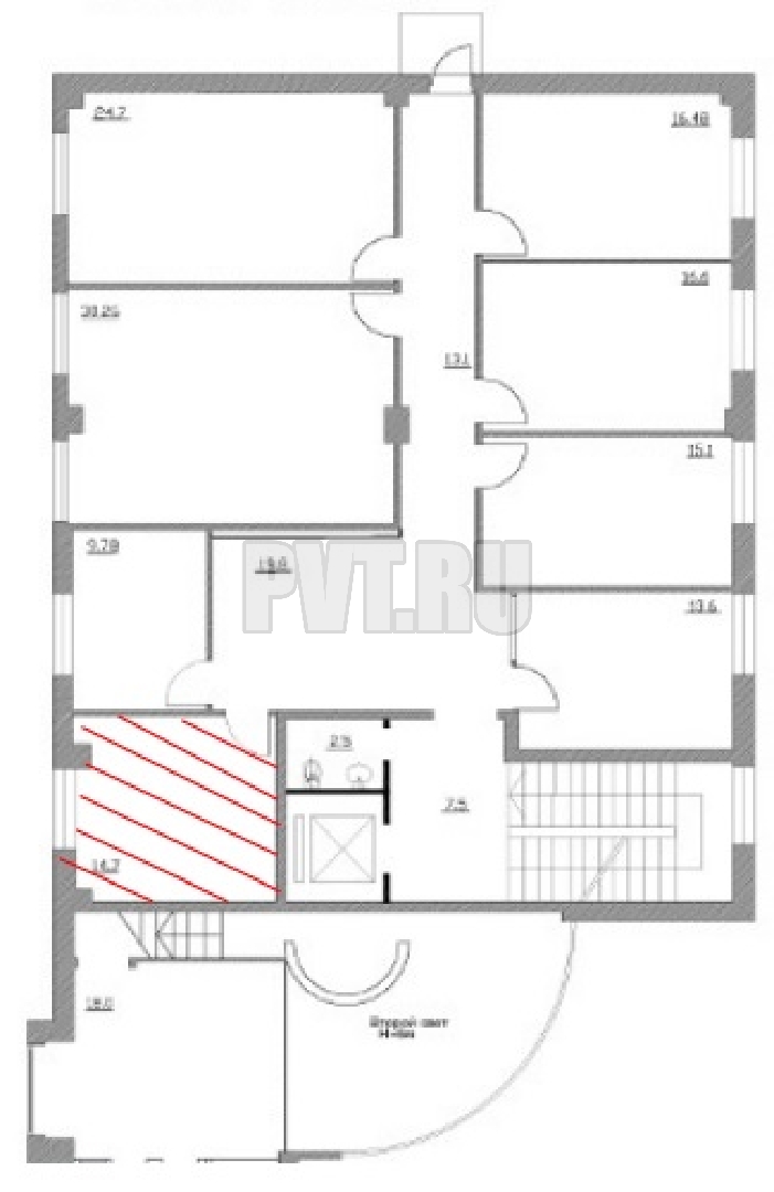
14,7 м²
На прилегающей территории
Да
Да
Да
Класс
Налоговая
Год постройки
Год реконструкции
Общая площадь
Количество этажей